Väike ja mõnus kodu
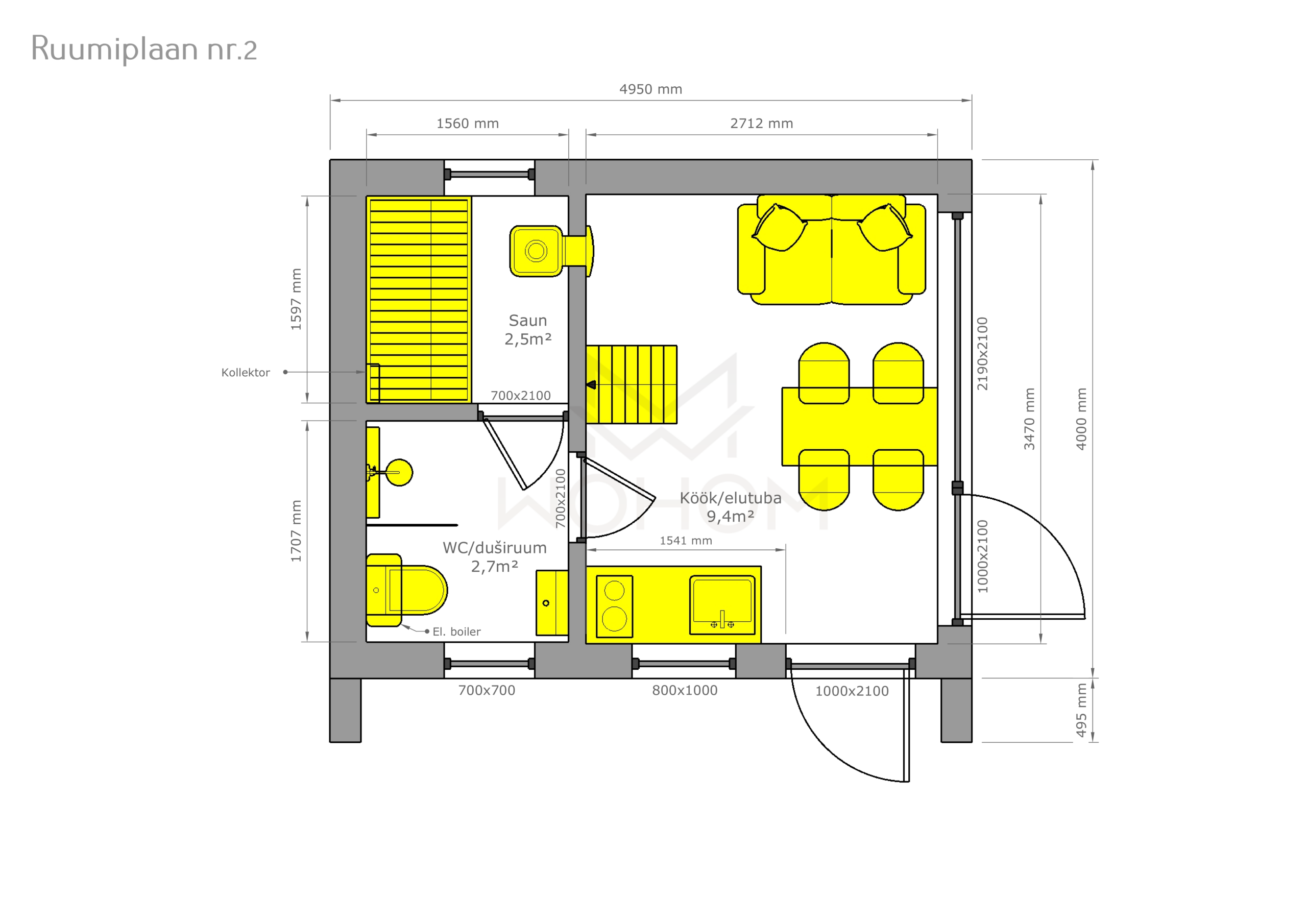
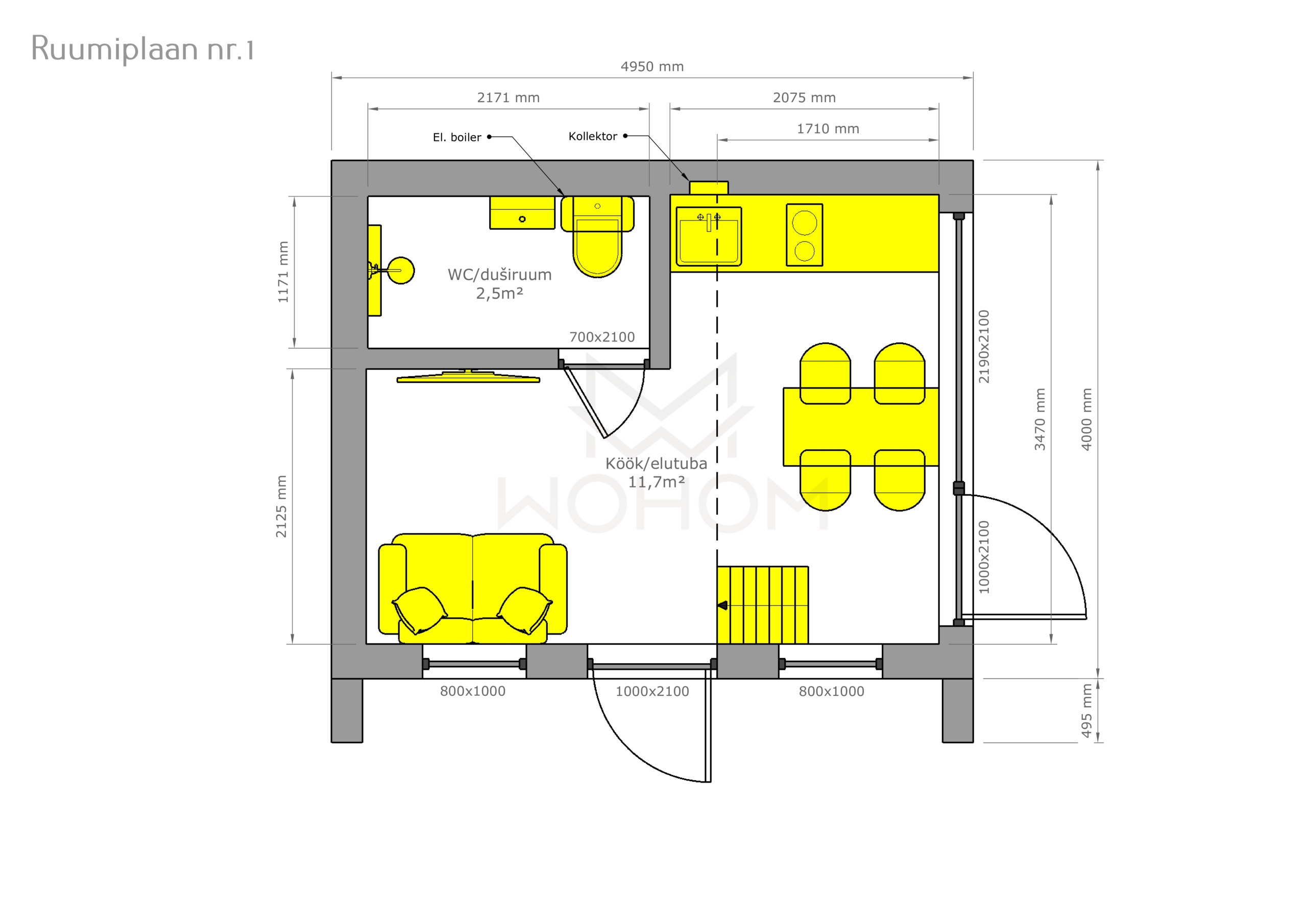
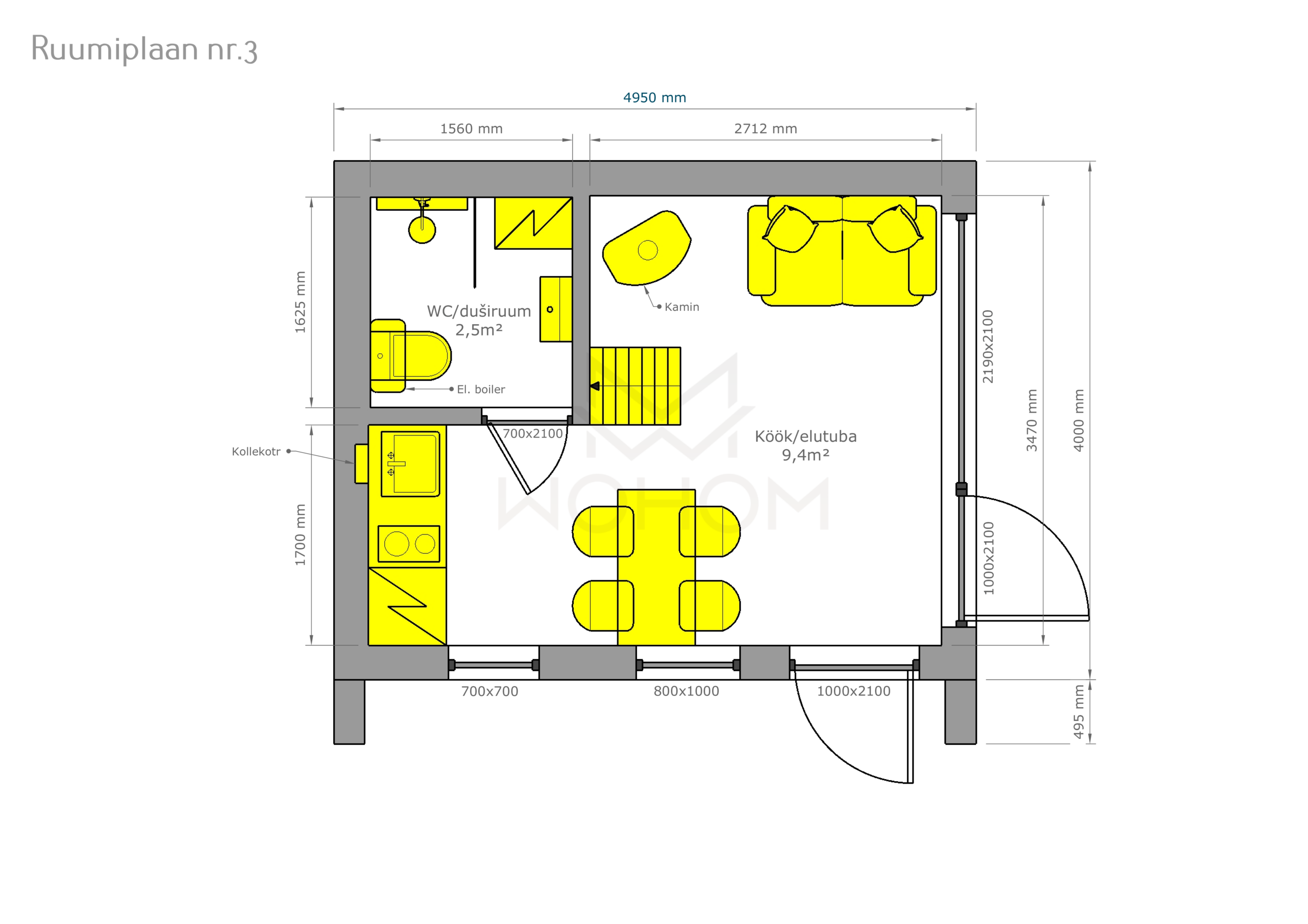
WOHOM Richard on 19,8m² klassikalise viilkatusega väikemaja, mis sobib aastaringseks kasutamiseks. Richardi esimesel korrusel asub avar köök-elutuba ja WC-duširuum, teisel korrusel asub 1,8m sisekõrgusega magamistuba. Hoone saab vastavalt vajadusele kujundada nii koduks, suvilaks, kontoriks, stuudioks, saunamajaks kui ka üüripinnaks. Kuni 20m² hoone ei vaja paigaldamiseks ka ehitusluba.
WOHOM Richard standard VÄLJAST VALMIS PAKETT:
WOHOM Richard standard SISEVIIMISTLUSE PAKETT:
Viimistlusmaterjalid:
Vundament:
Küttelahendused:
Põhiplaanid ja hoone konstruktsioon:
Põhiplaanid ja konstruktsiooni läbilõiked on leitavad iga hoonemudeli juures asuvast pildigaleriist
Miks eelistada WOHOM moodulmaju?
Kõikide hoonete ehitamisel lähtume kliendi soovidest ja vajadustest, mille põhjal koostame personaalse hinnapakkumise.
Kui antud hoone pakub Teile huvi, siis küsige julgesti pakkumist kontaktivormi kaudu või e-posti aadressilt info@wohom.ee