Kaasaegne väikemaja aastaringseks kasutamiseks
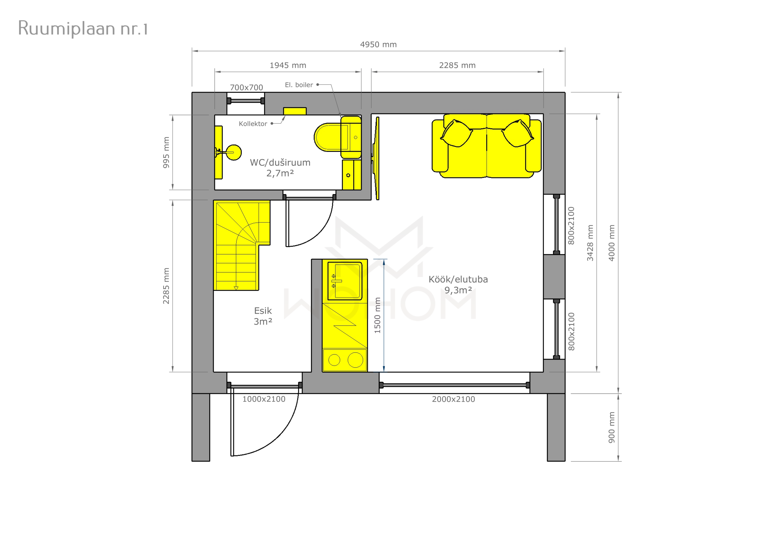
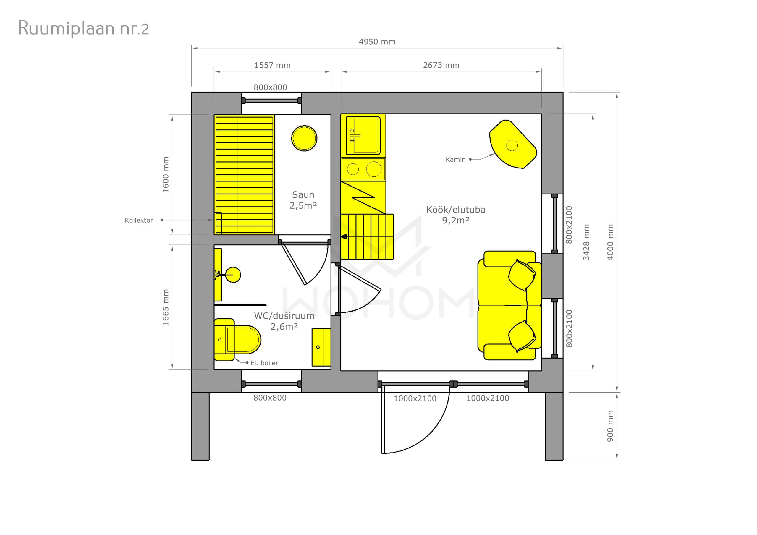
WOHOM Henry on 20² kaasaegse disainiga väikemaja, mis sobib aastaringseks kasutamiseks. Henry esimesel korrusel asub avar köök-elutuba ja WC-duširuum, teisel korrusel asub 1,75m sisekõrgusega magamistuba. Hoone saab vastavalt vajadusele kujundada nii koduks, suvilaks, kontoriks, stuudioks, saunamajaks kui ka üüripinnaks. Kuni 20m² hoone ei vaja paigaldamiseks ehitusluba.
WOHOM Henry standard VÄLJAST VALMIS PAKETT:
WOHOM Henry standard SISEVIIMISTLUSE PAKETT:
Viimistlusmaterjalid:
Vundament:
Küttelahendused:
Põhiplaanid ja hoone konstruktsioon:
Põhiplaanid ja konstruktsiooni läbilõiked on leitavad iga hoonemudeli juures asuvast pildigaleriist
Miks eelistada WOHOM moodulmaju?
Kõikide hoonete ehitamisel lähtume kliendi soovidest ja vajadustest, mille põhjal koostame personaalse hinnapakkumise.
Kui antud hoone pakub Teile huvi, siis küsige julgesti pakkumist kontaktivormi kaudu või e-posti aadressilt info@wohom.ee