Laos kohe saadaval
WOHOM “Hannes” on 43mm freesprussist kahe ruumiga saunamaja.
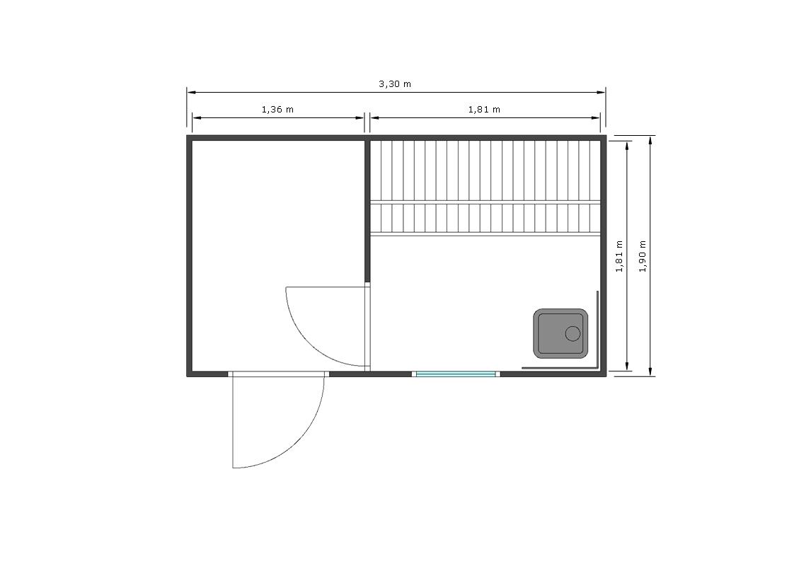
Saunamaja mõõtmed:
Pikkus: 3,3m,
Laius: 1,9m
Kõrgus: 2,4m
Kaal: 1170kg
Materjalide ja sisustuse spetsifikatsioon:
Lisana pakume juurde:
Saunamaja hind värvimata kujul 5290€
Hinna sisaldavad käibemaksu 20%