Mõnus alternatiiv korterile
WOHOM 40 kuulub meie uusimasse valmismajade seeriasse. Nende majade disainimisel oleme lähtunud viilkatuse lahendusest koos klassikalise räästakujuga, mis on omakorda ühendatud kaasaegse ruumiplaneeringuga. Kõrged laed ja avarad aknapinnad teevad elutoa ja magamistoa mõnusalt ruumikaks- kõik see tervikuna loob suurepärase keskkonna nii puhkamiseks kui ka igapäevasteks toimetusteks.
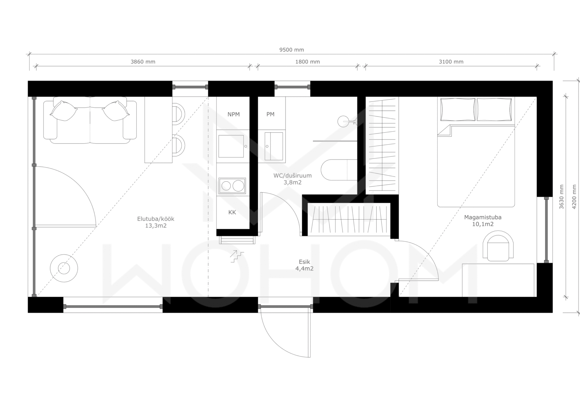
Maja üllatab oma mõõtmetega ning lausa 4,2m laiune tehases toodetud majamoodul pakub oluliselt avaramat ja mugavamat ruumikasutust võrreldes tavapäraste kitsamate moodulmajadega. WOHOM 40 nutikas planeering mahutab 40m² vundamendialale kõik igapäevaseks eluks vajaliku.
Ruumilahendus hõlmab esikut, köök-elutuba, ruumikat magamistuba töönurgaga, WC-duširuumi ning maja keskosas paiknevat teise korruse magamislavatsit. Viimane sobib suurepäraselt külaliste majutamiseks või praktiliseks panipaigaks.
Ajatu arhitektuur ja läbimõeldud detailid teevad WOHOM 40-st ideaalse valiku nii linna- kui maakohtadesse. See sobib nii suvilaks, kui ka aastaringselt kasutatavaks koduks. WOHOM 40 on loodud neile, kes hindavad kõrget kvaliteeti, avarust ja hoolikalt läbimõeldud lahendusi.
Põhilised hoone parameetrid:
Esimene samm sinu uue moodulmaja suunas
Vali toimiv standardlahendus või loo koos meiega just Sinu vajadustele vastav planeering.
Korruseplaan (1. korrus)

Korruseplaan (2. korrus)

WOHOMi moodul- ja elementmajad projekteeritakse ning ehitatakse vastavalt kliendi soovidele, vajadustele ja krundi eripäradele. Nende andmete põhjal koostame personaalse hinnapakkumise.
Kui see moodulmaja mudel pakub Teile huvi, palume saata hinnapäring kontaktivormi kaudu või e-posti aadressile info@wohom.ee. Täpse pakkumise koostamiseks lisage päringule kindlasti ka oma kontaktandmed ning krundi katastrinumber.
Huvilistele pakume võimalust külastada ka meie tehast ja tutvuda näidismajade ning tootmisprotsessiga. Oma soovist palume teada anda e-posti teel.