Mõnus alternatiiv korterile
WOHOM 50 kuulub meie uusimasse valmismajade seeriasse. Nende majade disainimisel oleme lähtunud viilkatuse lahendusest koos klassikalise räästakujuga, mis on omakorda ühendatud kaasaegse ruumiplaneeringuga. Kõrged laed ja avarad aknapinnad teevad elutoa ja magamistoa mõnusalt ruumikaks- kõik see tervikuna loob suurepärase keskkonna nii puhkamiseks kui ka igapäevasteks toimetusteks.
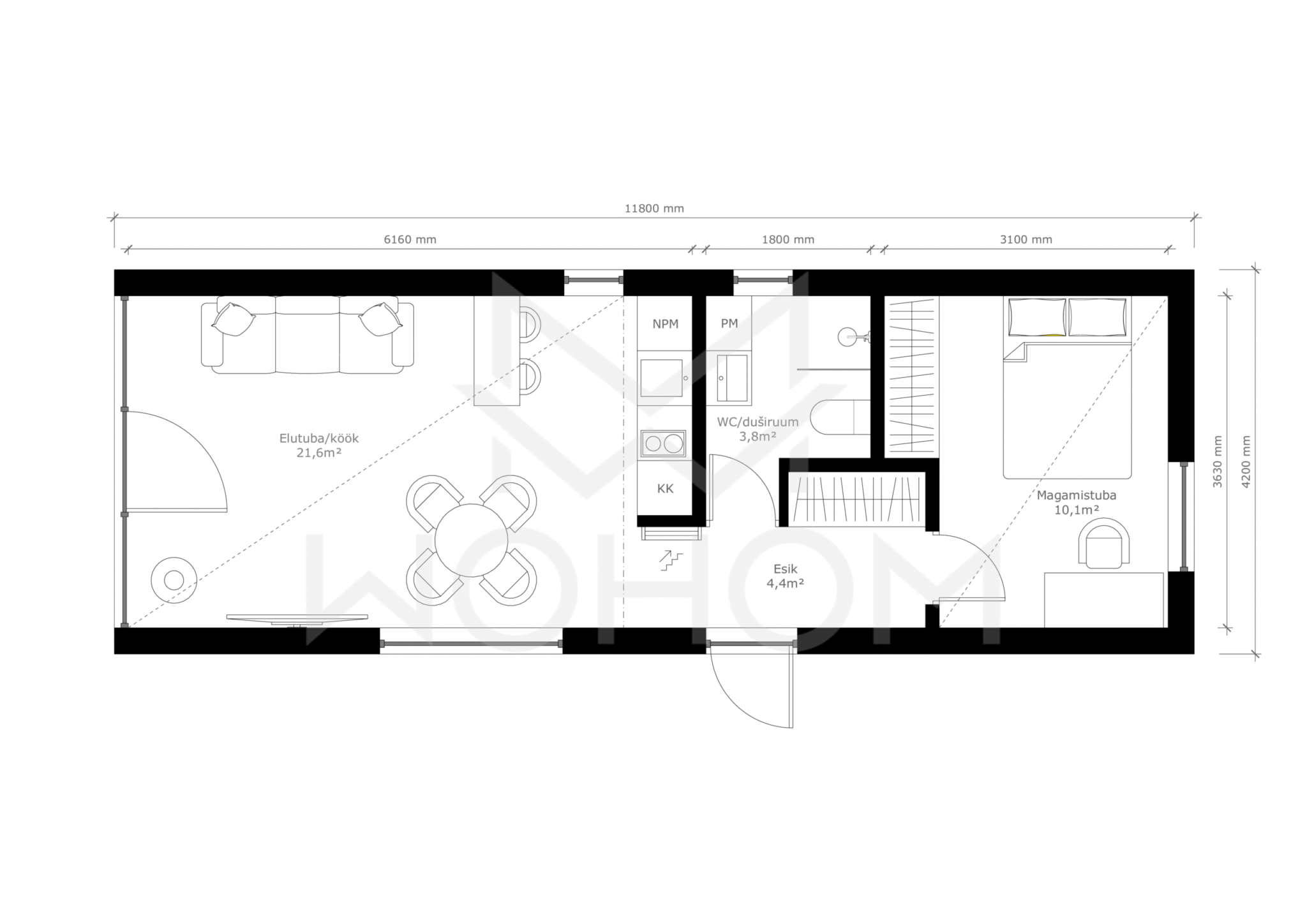
Maja üllatab oma mõõtmetega ning lausa 4,2m laiune tehases toodetud majamoodul pakub oluliselt avaramat ja mugavamat ruumikasutust võrreldes tavapäraste kitsamate moodulmajadega. WOHOM 50 nutikas planeering mahutab 50m² vundamendialale kõik igapäevaseks eluks vajaliku.
Ruumilahendus hõlmab esikut, köök-elutuba, ruumikat magamistuba töönurgaga, WC-duširuumi ning maja keskosas paiknevat teise korruse magamislavatsit. Viimane sobib suurepäraselt külaliste majutamiseks või praktiliseks panipaigaks.
Ajatu arhitektuur ja läbimõeldud detailid teevad WOHOM 50-st ideaalse valiku nii linna- kui maakohtadesse. See sobib nii suvilaks, kui ka aastaringselt kasutatavaks koduks. WOHOM 50 on loodud neile, kes hindavad kõrget kvaliteeti, avarust ja hoolikalt läbimõeldud lahendusi.
Kõikide hoonete ehitamisel lähtume kliendi soovidest ja vajadustest, mille põhjal koostame personaalse hinnapakkumise.
Kui antud hoone pakub Teile huvi, siis küsige julgesti pakkumist või broneerige tehase ja näidismajadega tutvumine e-posti aadressilt info@wohom.ee