Mõnus alternatiiv korterile
Tõnis 50 Classic pakub oma mõõtmete tõttu rohkelt ruumi ning võimaldab soovi korral planeerida hoonesse lisaks magamistoale ka saunaruumi. Läbimõeldud planeering toetab mugavat kasutust nii suvilana kui väiksema elamuna. Kaasaegne viilkatus ja minimalistlik välisilme teevad sellest mitmekülgse ja ajatu lahenduse.
Põhilised hoone parameetrid:
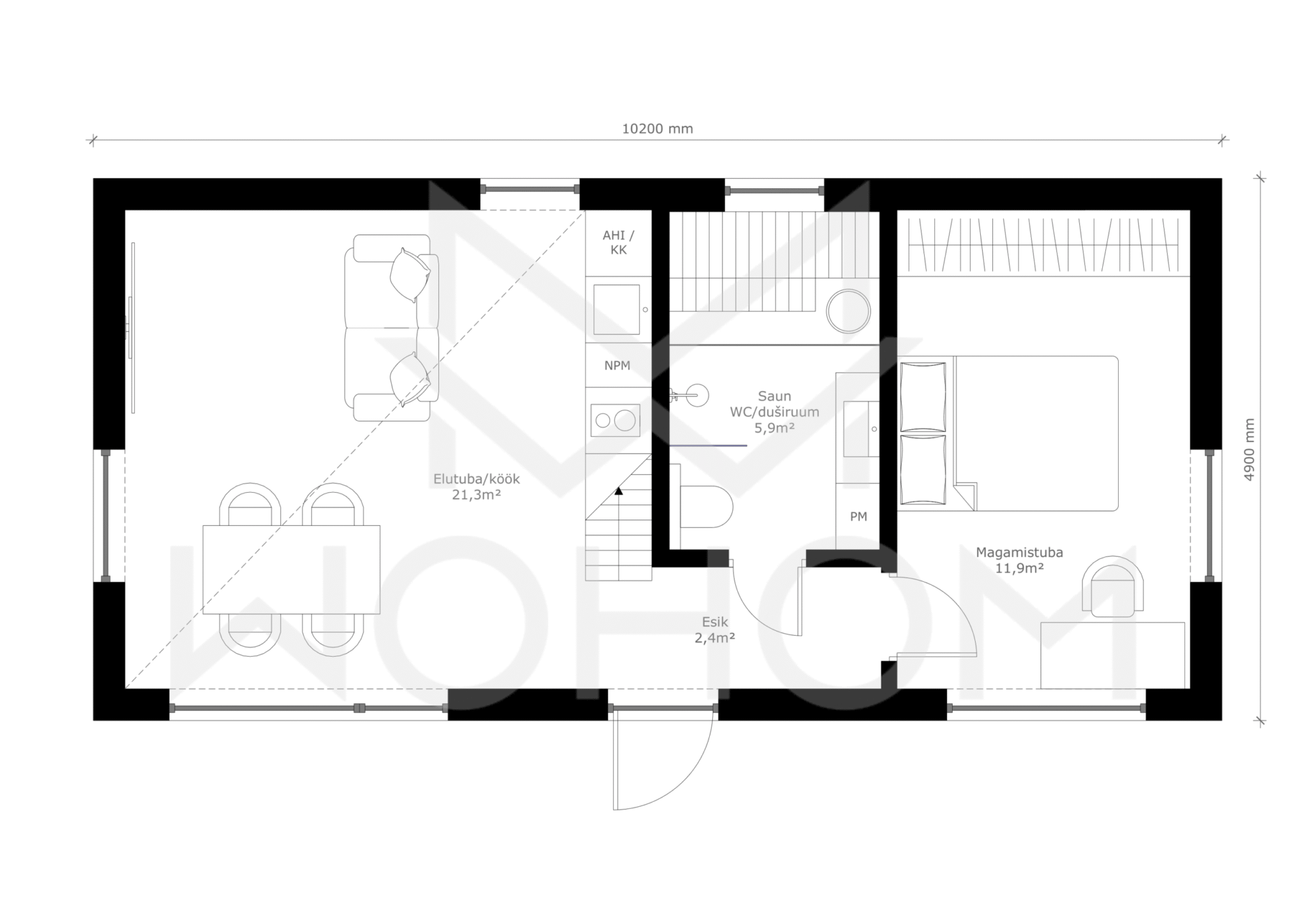
Korruseplaan (1. korrus variant nr 1)
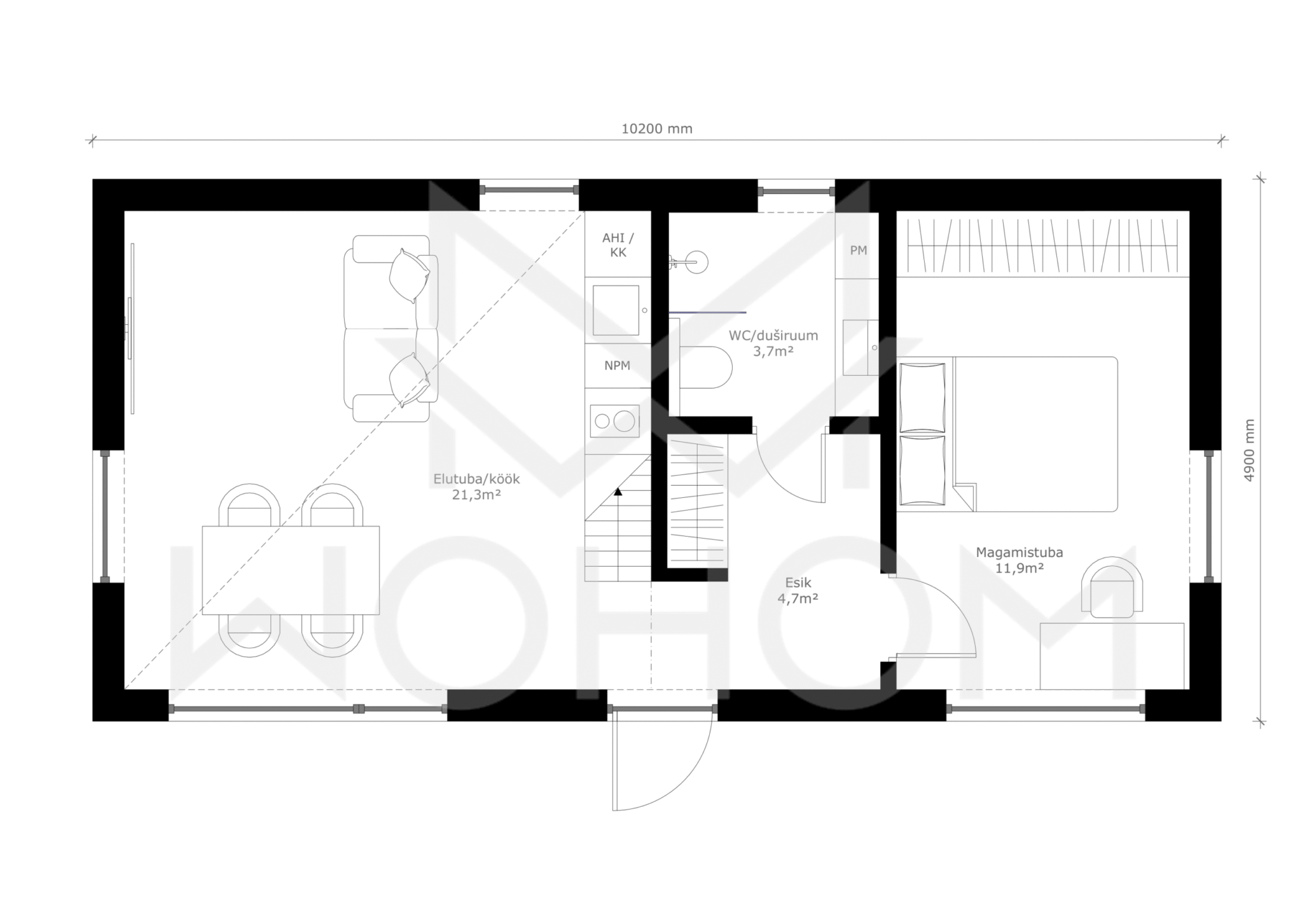
Korruseplaan (1. korrus variant nr 2)
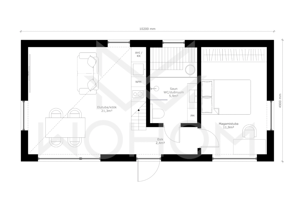
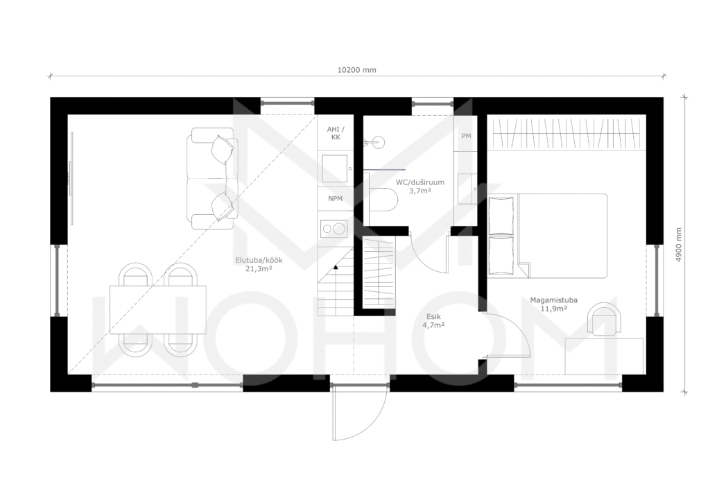
Korruseplaan (loft)

WOHOMi moodul- ja elementmajad projekteeritakse ning ehitatakse vastavalt kliendi soovidele, vajadustele ja krundi eripäradele. Nende andmete põhjal koostame personaalse hinnapakkumise.
Kui see moodulmaja mudel pakub Teile huvi, palume saata hinnapäring kontaktivormi kaudu või e-posti aadressile info@wohom.ee. Täpse pakkumise koostamiseks lisage päringule oma kontaktandmed ning krundi katastrinumber.
Huvilistele pakume võimalust külastada ka meie tehast ja tutvuda näidismajade ning tootmisprotsessiga. Oma soovist palume teada anda e-posti teel.