Sirje 60 on modernse viilkatusega ja originaalis 60 m² vundamendi pindalaga kombineeritud moodul-elementmaja, mis sobib hästi nii aastaringseks elamiseks kui ka suvilaks. Modernne arhitektuur ja hoolikalt läbi mõeldud planeering loovad avara ja valgusküllase tunde. Sisemine ruumipaigutus on kohandatav vastavalt vajadustele.
Põhilised hoone parameetrid:
Esimene samm sinu uue kodu suunas
Vali toimiv standardlahendus või loo koos meiega just Sinu vajadustele vastav planeering.
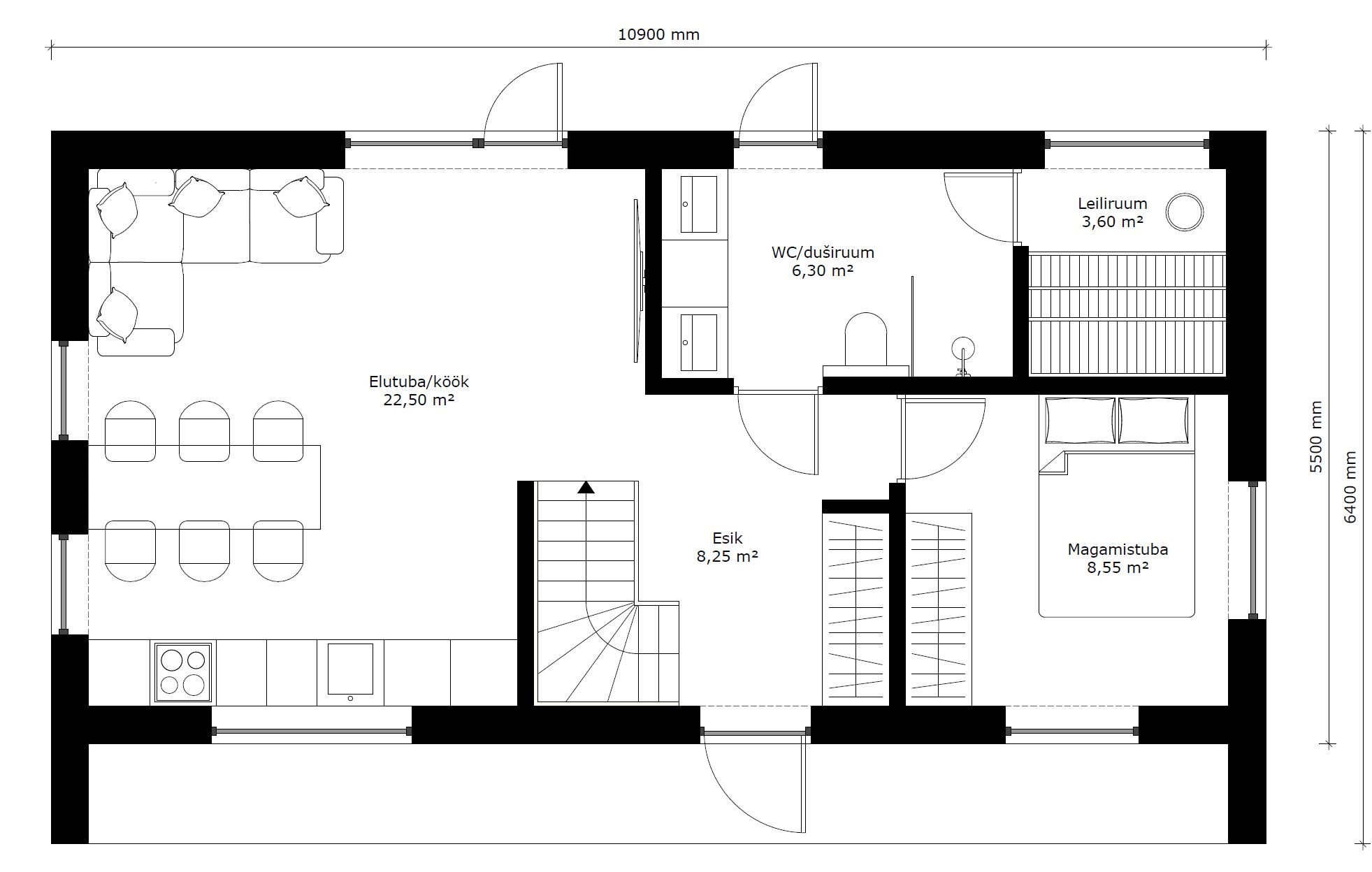
Korruseplaan (1. korrus)

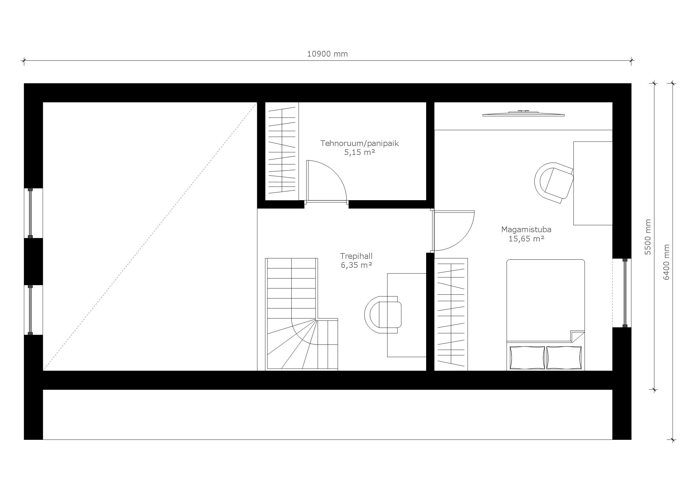
Korruseplaan (2. korrus variant nr. 1)


WOHOMi moodul- ja elementmajad projekteeritakse ning ehitatakse vastavalt kliendi soovidele, vajadustele ja krundi eripäradele. Nende andmete põhjal koostame personaalse hinnapakkumise.
Kui see moodulmaja mudel pakub Teile huvi, palume saata hinnapäring kontaktivormi kaudu või e-posti aadressile info@wohom.ee. Täpse pakkumise koostamiseks lisage päringule kindlasti ka oma kontaktandmed ning krundi katastrinumber.
Huvilistele pakume võimalust külastada ka meie tehast ja tutvuda näidismajade ning tootmisprotsessiga. Oma soovist palume teada anda e-posti teel.