Ruumikas ja stiilne väikemaja aastaringseks kasutamiseks
Oliver 20 on loft-tüüpi väikemaja, mille avar sisemus üllatab ruumikusega. Lamekatus ja kandiline kuju rõhutavad modernset arhitektuuri, samal ajal kui suured aknapinnad toovad ruumi rohkelt valgust ja avarust. Tänu oma nutikale ruumilahendusele sobib see ideaalselt nii koduks, suvilaks, kontoriks, saunamajaks kui ka üüripinnaks.
Põhilised hoone parameetrid:
Esimene samm sinu uue kodu suunas
Vali toimiv standardlahendus või loo koos meiega just Sinu vajadustele vastav planeering.
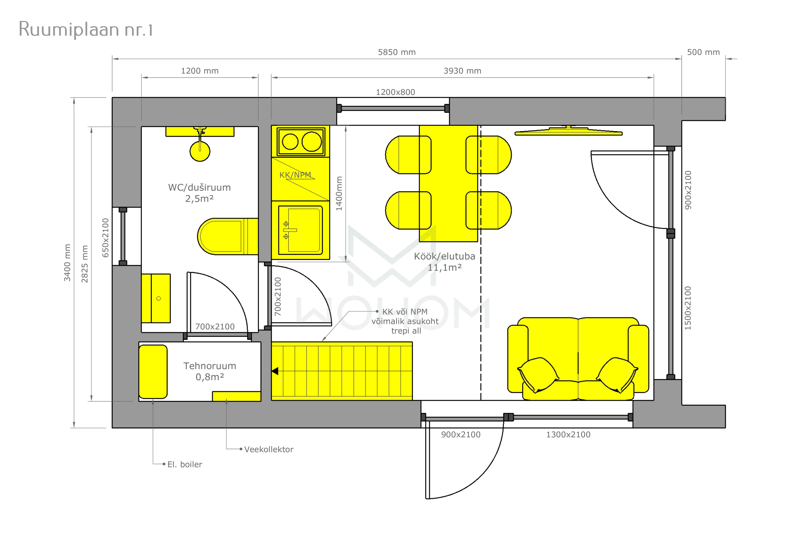
Korruseplaan (1. korrus)

Korruseplaan (2. korrus)

WOHOMi moodul- ja elementmajad projekteeritakse ning ehitatakse vastavalt kliendi soovidele, vajadustele ja krundi eripäradele. Nende andmete põhjal koostame personaalse hinnapakkumise.
Kui see moodulmaja mudel pakub Teile huvi, palume saata hinnapäring kontaktivormi kaudu või e-posti aadressile info@wohom.ee. Täpse pakkumise koostamiseks lisage päringule kindlasti ka oma kontaktandmed ning krundi katastrinumber.
Huvilistele pakume võimalust külastada ka meie tehast ja tutvuda näidismajade ning tootmisprotsessiga. Oma soovist palume teada anda e-posti teel.