Kaspar 32 on välja töötatud meie Gustav moodulmajade seeria põhjal. Lamedama viilkatuse ja kõrgemate külgseinte tõttu mõjub ta veelgi modernsemalt ja avaramalt. Selge ja minimalistlik arhitektuur, räästasteta viilkatus ning puhtad jooned annavad majale kaasaegse ilme. Sõltuvalt planeeringust sobib hästi luksuslikuks saunamajaks või ühe magamistoaga puhkemajaks.
Põhilised hoone parameetrid:
Esimene samm sinu uue kodu suunas
Vali toimiv standardlahendus või loo koos meiega just Sinu vajadustele vastav planeering.
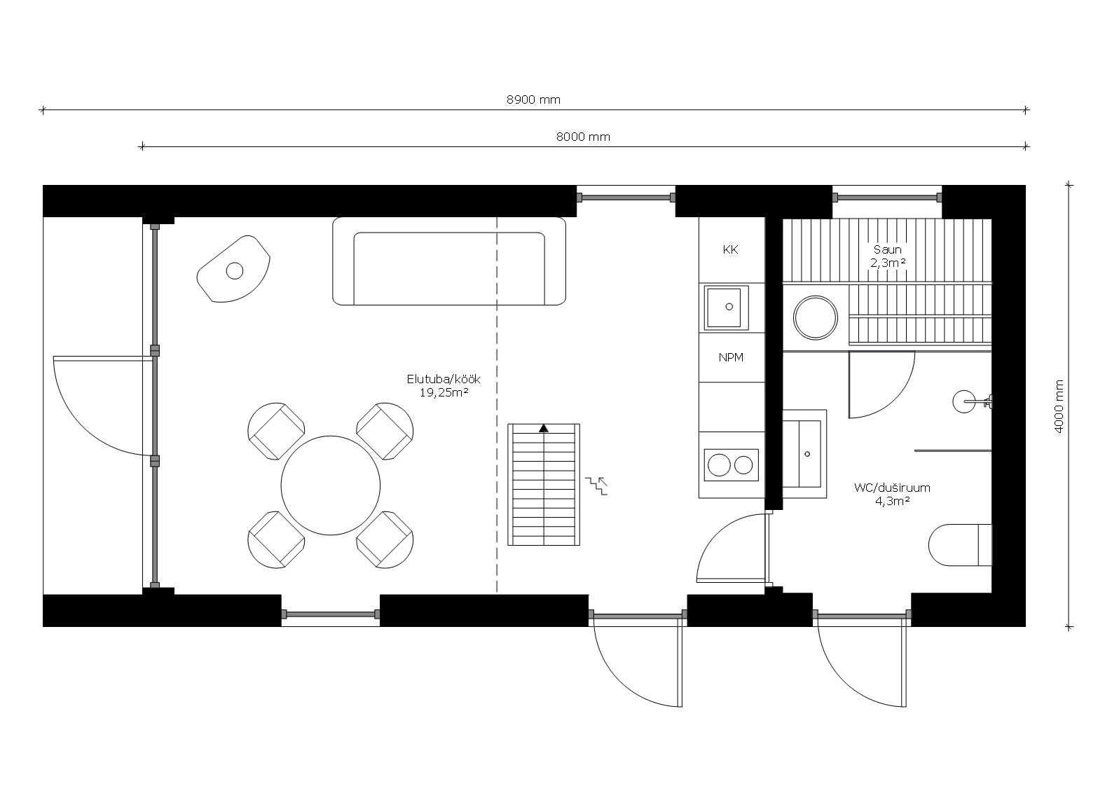
Korruseplaan (1. korrus)


WOHOMi moodul- ja elementmajad projekteeritakse ning ehitatakse vastavalt kliendi soovidele, vajadustele ja krundi eripäradele. Nende andmete põhjal koostame personaalse hinnapakkumise.
Kui see moodulmaja mudel pakub Teile huvi, palume saata hinnapäring kontaktivormi kaudu või e-posti aadressile info@wohom.ee. Täpse pakkumise koostamiseks lisage päringule kindlasti ka oma kontaktandmed ning krundi katastrinumber.
Huvilistele pakume võimalust külastada ka meie tehast ja tutvuda näidismajade ning tootmisprotsessiga. Oma soovist palume teada anda e-posti teel.