GUSTAV 40 on praktiline lahendus neile, kes soovivad kaasaegset ja hästi läbimõeldud kodu. Moderne disain annab majale selge ja puhta ilme, mis sobib nii linnalähedasse kui looduskaunisse asukohta. Suured aknad toovad sisse rohkelt valgust, mis lisab ruumidele mõnusalt avarust.
Maja on ehitatud aastaringseks kasutamiseks: põrandas ja katusel on soojustuskihi paksus 250 mm ning seintes 200 mm, mis tagab stabiilse sisekliima ja väga mõistliku energiakulu. Hästi läbimõeldud planeering, milles asuvad köök-elutuba, eraldi magamistuba, WC-duširuum ning teisel korrusel paiknev avar magamislavats-panipaik. GUSTAV 40 sobib suurepäraselt nii koduks, suvilaks kui ka üüripinnaks- lihtne, praktiline ja kohe kasutusvalmis moodulmaja lahendus.
Põhilised hoone parameetrid:
Esimene samm sinu uue moodulmaja suunas
Vali toimiv standardlahendus või loo koos meiega just Sinu vajadustele vastav planeering.
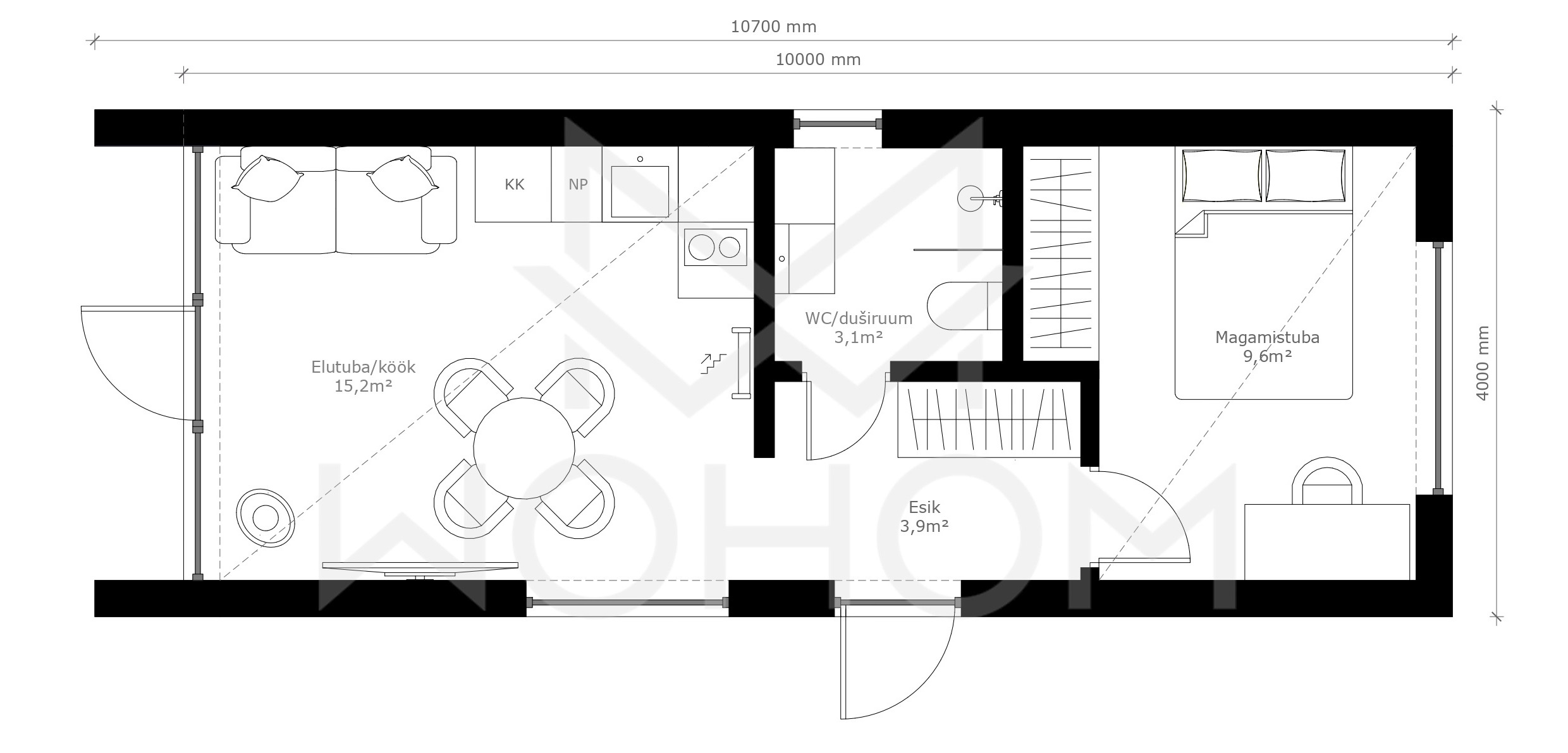
Ruumiplaan (1. korrus)

2. korrus – loft

2. korrus – pikendatud loft

WOHOMi moodul- ja elementmajad projekteeritakse ning ehitatakse vastavalt kliendi soovidele, vajadustele ja krundi eripäradele. Nende andmete põhjal koostame personaalse hinnapakkumise.
Kui see moodulmaja mudel pakub Teile huvi, palume saata hinnapäring kontaktivormi kaudu või e-posti aadressile info@wohom.ee. Täpse pakkumise koostamiseks lisage päringule kindlasti ka oma kontaktandmed ning krundi katastrinumber.
Huvilistele pakume võimalust külastada ka meie tehast ja tutvuda näidismajade ning tootmisprotsessiga. Oma soovist palume teada anda e-posti teel.