Gustav 20 on meie klientide seas üks populaarseim väikemaja. See on ruumikas ja praktiline 20m² moodulmaja, milles asub avar köök-elutuba, WC-duširuum ning magamistuba hoone teisel korrusel. Räästasteta viilkatus ja lihtne vorm loovad puhta, tänapäevase välimuse. Nutikas planeering tagab kõik esmavajaliku mugavalt väikesel pinnal. Gustav 20 sobib suurepäraselt suvilaks või väiksemaks puhkerajatiseks.
Põhilised hoone parameetrid:
Esimene samm sinu uue kodu suunas
Vali toimiv standardlahendus või loo koos meiega just Sinu vajadustele vastav planeering.
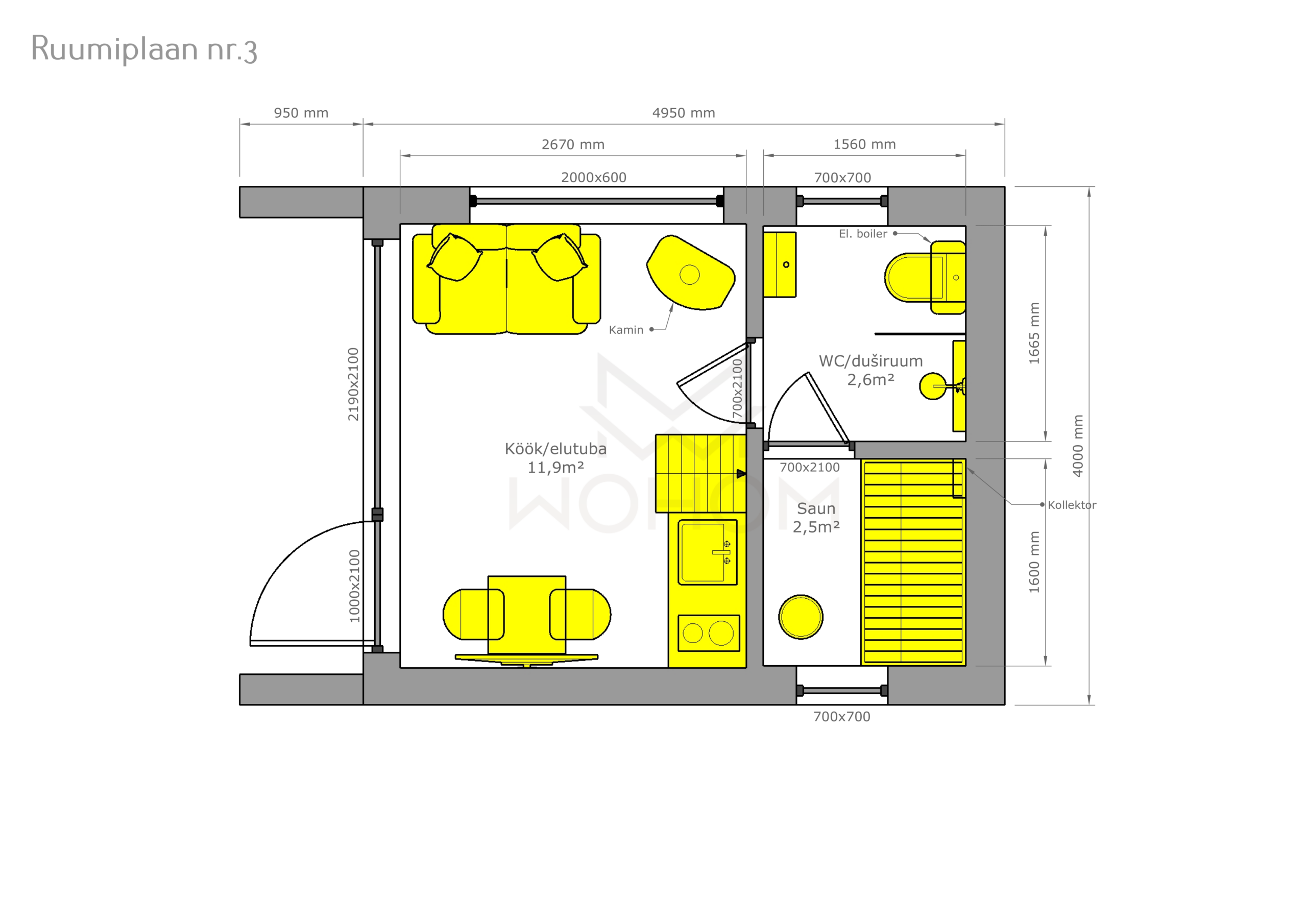
Korruseplaan (1. korrus)
Korruseplaan (2. korrus)
WOHOMi moodul- ja elementmajad projekteeritakse ning ehitatakse vastavalt kliendi soovidele, vajadustele ja krundi eripäradele. Nende andmete põhjal koostame personaalse hinnapakkumise.
Kui see moodulmaja mudel pakub Teile huvi, palume saata hinnapäring kontaktivormi kaudu või e-posti aadressile info@wohom.ee. Täpse pakkumise koostamiseks lisage päringule kindlasti ka oma kontaktandmed ning krundi katastrinumber.
Huvilistele pakume võimalust külastada ka meie tehast ja tutvuda näidismajade ning tootmisprotsessiga. Oma soovist palume teada anda e-posti teel.